Callenberg:
VERKAUFT: Ländliches ruhiges Wohnen - Einfamilienhaus in Callenberg im Verkauf
Objekt-Nr.: 13-steu-06425

Hausansicht

Grundstück

Hausansicht

Geräteschuppen

Carport und Garage

Terrasse

Grundstück







Preis:
142.000 €
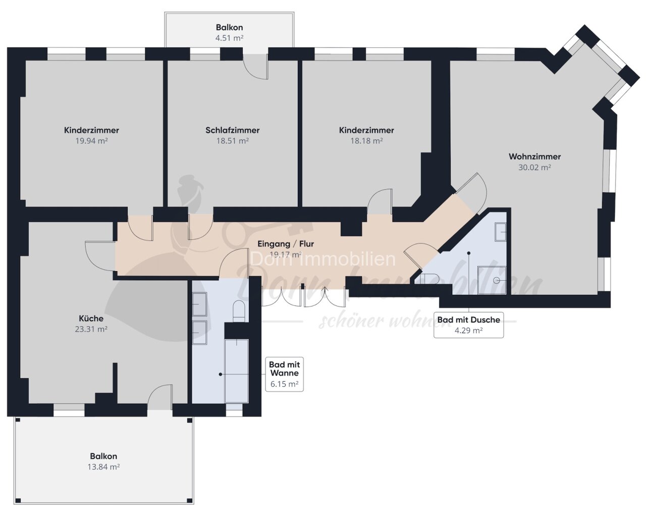
Wohnfläche ca.:
124,35 m²
Grundstück ca.:
1.620 m²
Zimmeranzahl:
3
*** Um alle Bilder, Innenfotos, Grundrisse und Informationen zu dieser Immobilie sehen zu können, fordern Sie bitte unser umfangreiches Exposé an. Senden Sie uns Ihre Anfrage und Sie erhalten das Exposé mit vollständigem Bildmaterial und detaillierter Beschreibung. ***
***Besichtigung am 23.08.2025 eingeplant***
Haustyp: Einfamilienhaus
Etagenanzahl: 2
Provisionspflichtig: ja
Provision: 3,57 % incl. MwSt. Maklercourtage,
Nutzfläche ca.: 56,27 m²
Küche: Einbauküche
Bad: Dusche, Wanne, Fenster
Anzahl Schlafzimmer: 2
Anzahl Badezimmer: 2
Balkon: 1
Gäste-WC: ja
Garten: ja
Keller: teil unterkellert
Umgebung: ruhige Gegend, Wohngegend
Anzahl der Parkflächen: 1 x Carport; 2 x Außenstellplatz; 1 x Garage
Qualität der Ausstattung: normal
Baujahr: 1868
Verfügbar ab: sofort
Bodenbelag: Fliesen, Laminat, Teppichboden
Zustand: gepflegt
Energieverb. Warmwasser enthalten: ja
Energieklasse: F
Heizung: Zentralheizung
Energieausweistyp: Verbrauchsausweis - gültig vom 14.08.2025 bis 14.08.2035
Energieeffizienz-Klasse: F
Baujahr laut Energieausweis: 1868
Maklerprovision inkl. MwSt. Diese ist nach Abschluss eines rechtskräftigen Kaufvertrages zur Zahlung fällig. Die Maklerprovision wird vom beurkundeten Kaufpreis berechnet.
Die von uns gemachten Informationen beruhen auf Angaben der Verkäufer. Für die Richtigkeit und Vollständigkeit der Angaben kann keine Gewähr bzw. Haftung übernommen werden. Ein Zwischenverkauf und Irrtümer sind vorbehalten.
Das könnte Ihnen auch gefallen

Dorn Immobilien
Frau Ines Dorn-Schmähl
Römerstraße27
08056 Zwickau
Mobil: +49 176 61466866









































